Rodinná vinárna Maštal

Původní stáj jsme přeměnili na útulnou rodinnou vinárnu.

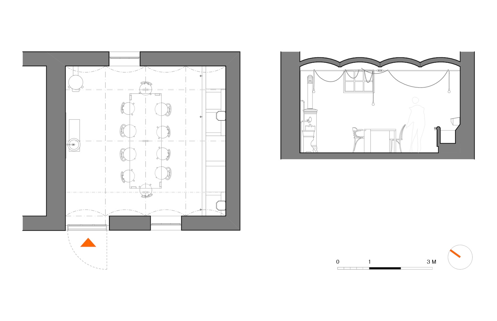
Po odkrytí původních omítek bylo rozhodnuto o částečném přiznání cihelné struktury zdiva a kleneb. Valené klenby vykazovaly lokální poruchy, bylo tak nutné celou konstrukci stabilizovat trojicí ocelových táhel. V půdním prostoru tak vznikl mohutný železobetonový věnec, který přenáší vodorovné síly od navržených táhel. Samotný interiér je založen na pravdivosti tradičních materiálů. Kombinovány jsou hrubé povrchy obnažených kleneb a zdiva s hladkými povrchy nové podlahy z kletovaného betonu a štukovými omítkami opatřenými tabulovou barvou.

Návrh interiéru se spontánně měnil tak, jak se očišťovaly a odkrývaly jednotlivé konstrukce. Autoři hledali cestu, která zachová ducha prostoru při kombinování tradičních a moderních povrchů a prvků. Prostor maštale čtvercového půdorysu je zastropen valenými cihelnými klenbami do ocelových nosníků, které bezesporu patří k dominantě prostoru.

Dominantou prostoru je dubový stůl podle návrhu architektů, ke kterému byly postupně vybírány staré židle z ohýbaného dřeva. Zajímavostí rozměrného stolu, který měří na délku přes tři metry, je jeho netradiční konstrukce bez výztuh. Tuhost masivního stolu zajišťuje čtveřice dřevěných nohou obdélníkového půdorysu, které jsou pomocí závitových tyčí kotveny k desce stolu. Obdélníkové nohy stolu jsou v rozích nápaditě směrově prostřídány k zajištění stability.

Osvětlení prostoru zajišťují retro žárovky volně rozvěšené na nových ocelových táhlech. Přívody k jednotlivým zdrojům osvětlení jsou řešeny přiznanými textilními kabely s černobílým „žehličkovým“ vzorem.

Celkový charakter interiéru podtrhují repasovaná vídeňská kamna s více jak 100letou historií.

Starý fotografický reflektor, který svým nepřímým nasvětlením obnažených kleneb vytváří kouzelnou atmosféru pro vychutnání skleničky vína, které bylo sklizeno a vyrobeno z vinné révy obepínající celé staré stavení.

Autor: 3K Architects s.r.o.
Lokalita: Heřmanův Městec

Datum realizace: